Problem z załączaniem hederu john deere 2054
-
Podobna zawartość
-
Przez RolnikMat
Zainteresował mnie ten model kombajny marki JOHN DEERE. Czy moglibyście mi powiedzieć co nieco o nim. Jakieś dane techniczne chodzi mi tu o moc silnika, masę kombajnu, cena, awaryjność. Proszę nie dawać linków z przekierowaniem na 1450 cws.
-
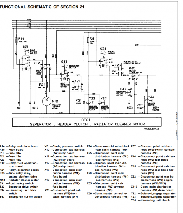
Przez poderwa
Witam-po odpaleniu kombajnu nie działają żadne przełączniki od hydrauliki, to znaczy że nie mogę podnieść hederu ani załączyć młocarni itp. Ładowanie akumulatora gaśnie, gdzie szukać awarii ?
-
Przez damianus2222
Witam mam pytanie do użytkowników kombajnów John Deere 1450 /1470 lub innych którzy mieli podobny problem.
Mam problem tego typu że, kombajn rano jest czyszczony obsługa codzienna na tip top jadę w pole kosze od 11 do ok 17/18 te 6/7 godzin i zaczyna mi się zapalać kontrolka powietrza dolotowego czyli żółta kontrolka świec żarowych, nad głową zapalają się 2 diody czerwona i żółta, gdy zejdę obrotami na 2 zakres gaśnie ujade kawałek indie znów zapala... Kody błedow to spn 1569, 1078, 1077 a fmi 31. Nie wiem w czym leży przyczyna, dodam że filtr powietrza jest nawet w ciągu dnia czyszczony tak po 5 godzinach . Proszę o pomoc lub rady
-
Przez LulaszRol
Witam posiadam kombajn 2254 ,miałem problem z ładowaniem po włączeniu świateł gubił ładowanie ale nie zawsze wymieniłem nawet alternator i prawie wykończyłem akumulatory, nie mówiąc wyłączającej się młocarni bo nie było odpowiedniego napięcia w instalacji.
Szukałem przyczyny dosyć długo jedynie na co się napotkałem grzebiąc to że po odłączeniu przewodów z D+ (wzbudzenie) było na nich napięcie 6,5V, sprawdziłem do kąd idą te przewody jeden prowadzi do kontrolki a drugi jest dla mnie zagadką bo idzie do skrzynki pod silnikiem a tam połączony jest do przekaźnika k45 odpowiadającego za alarm biegu wstecznego, jedno z drugim nie ma nic wspólnego, przewód D+ wchodzący do przekaźnika otwiera (lub po prostu przechodzi) i wychodzi masą przez to jest spadek napięcia na wzbudzeniu po odłączeniu przekaźnika napięcie to okolice 12V. Czyli wszystko porządku
Na razie mam ładowanie na światłach również, zamontuje jeszcze woltomierz w kabinie. Ciekami mnie ten dodatkowy przewód D+ czy ktoś pomylił się w fabryce ? wygląda jak te oryginalne przewody czy może do czegoś to jest?
Stąd moje pytanie do posiadaczy takich kombajnów czy też macie dwa niebieskie cienkie przewody wychodzące z D+ na śrubce m5 przy alternatorze?
-

Rekomendowane odpowiedzi
Opryskiwacz hardi silnik sekcji
John deere 8230 & Helagro bth60
Jeśli chcesz dodać odpowiedź, zaloguj się lub zarejestruj nowe konto
Jedynie zarejestrowani użytkownicy mogą komentować zawartość tej strony.
Zarejestruj nowe konto
Załóż nowe konto. To bardzo proste!
Zarejestruj sięZaloguj się
Posiadasz już konto? Zaloguj się poniżej.
Zaloguj się