https://youtu.be/mf4AeMqTbSw
KarolTD90 1517 Opublikowano 9 Stycznia 2023 Jakie wymiary na ile sztuk i jaki koszt?? Odnośnik do komentarza https://www.agrofoto.pl/forum/gallery/image/823063-budowa-obory/#findComment-3016348
panczo1922 804 Opublikowano 9 Stycznia 2023 tylko po co?! przecież się "nie opłaca" Odnośnik do komentarza https://www.agrofoto.pl/forum/gallery/image/823063-budowa-obory/#findComment-3016405
dawid6330 124 Opublikowano 9 Stycznia 2023 18.5 x36 plus przybudowka 12x14 plus minus 70 szt. @KarolTD90 może się zacznie w końcu 😅 Odnośnik do komentarza https://www.agrofoto.pl/forum/gallery/image/823063-budowa-obory/#findComment-3016431
ChiquitaB 1010 Opublikowano 9 Stycznia 2023 Wrzucisz tu zdj rzutu przyziemia bo jestem ciekawy jak u ciebie rozklad obory jest zrobiony bo trochę dłuższą od mojej Odnośnik do komentarza https://www.agrofoto.pl/forum/gallery/image/823063-budowa-obory/#findComment-3016452
Gość Opublikowano 9 Stycznia 2023 firma stawia pod klucz? Odnośnik do komentarza https://www.agrofoto.pl/forum/gallery/image/823063-budowa-obory/#findComment-3016453
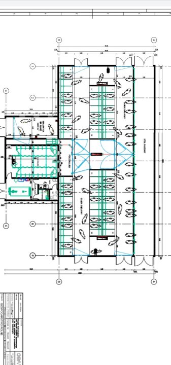
dawid6330 124 Opublikowano 9 Stycznia 2023 Nie bardzo mogę rozkminic jak to zrobić aby dodać w komentarzu zdjęcie . Są dwie grupy jedna 27 legowisk druga 33 legowiska i separatka na 7 szt w której panuje sztuki wchodzące w zasuszenie. czemu tak?? bo w planach jest jeszcze przedłużyć budynek i powiększyć tą grupę jedna albo zrobić dwie po 60 szt i dwa roboty, czas pokaże Odnośnik do komentarza https://www.agrofoto.pl/forum/gallery/image/823063-budowa-obory/#findComment-3016455
TheraRolnik 4177 Opublikowano 9 Stycznia 2023 @dawid6330 to kliknij i przekieruje ciebie do galerii w telefonie, wtedy klikasz na zdjęcie które chcesz dodać Odnośnik do komentarza https://www.agrofoto.pl/forum/gallery/image/823063-budowa-obory/#findComment-3016470
ChiquitaB 1010 Opublikowano 9 Stycznia 2023 Czyli pojedynczy rząd pod ścianą? I podwójny na środku? Ja mam 7m krótsza obore ale też jest z opcją przedłużenia w srodku no i druga stronę paszowego można dobudowac Odnośnik do komentarza https://www.agrofoto.pl/forum/gallery/image/823063-budowa-obory/#findComment-3016474
dawid6330 124 Opublikowano 9 Stycznia 2023 Brakuje wrysowanych legowisk bo robione bez raportu 🙈 Odnośnik do komentarza https://www.agrofoto.pl/forum/gallery/image/823063-budowa-obory/#findComment-3016476
kamcio15 1852 Opublikowano 9 Stycznia 2023 Tylko żeby dodać zdjęcie w komentarzu musisz dodawać przez przeglądarkę, przez apkę nie dodasz. Odnośnik do komentarza https://www.agrofoto.pl/forum/gallery/image/823063-budowa-obory/#findComment-3016477
ChiquitaB 1010 Opublikowano 9 Stycznia 2023 Spoko, wylej sobie na powrocie z hali udojowej odrazu wanienkę do płukania racic w betonie ze spustem to krowy będą na luzie przechodziły bez żadnych dodatkowych korytek. Wygarnianie g.. jak masz zaplanowane? Odnośnik do komentarza https://www.agrofoto.pl/forum/gallery/image/823063-budowa-obory/#findComment-3016486
dawid6330 124 Opublikowano 9 Stycznia 2023 No właśnie dzwi od biura przesunąłem i planuje wylać tą wannę do kąpieli. Zaprojektowane było pod delty ale planuje za obora zrobić kanał zrzutowy i kawałek dalej szambo w ziemi i wypychać narazie C330 tak jak YT " Powrót do korzeni " a jak rozbuduje to wtedy delty.Drzwi * Odnośnik do komentarza https://www.agrofoto.pl/forum/gallery/image/823063-budowa-obory/#findComment-3016488
ChiquitaB 1010 Opublikowano 9 Stycznia 2023 Powrót do korzeni to niedaleko mnie mieszka. Filmik z korekcji byl u mnie robiony. Ja mam z rolstalu zgarniacze i polecam bo wyszły taniej jak gea czy delaval. Tylko ceownik sobie odrazu zatop w betonie pod zgarniacz. Ja mam ciut za krótka wanienke bo niektóre potrafią tylko jeden krok zrobic a powinny dwa zrobic w wodzie. Odnośnik do komentarza https://www.agrofoto.pl/forum/gallery/image/823063-budowa-obory/#findComment-3016490
dawid6330 124 Opublikowano 9 Stycznia 2023 O ceowniku wiem i mam to na uwadze. Wygrodzenia mam z Rolstalu też najtaniej wyszły. Odnośnik do komentarza https://www.agrofoto.pl/forum/gallery/image/823063-budowa-obory/#findComment-3016496
ChiquitaB 1010 Opublikowano 9 Stycznia 2023 Te samonośne wybrałeś? Odnośnik do komentarza https://www.agrofoto.pl/forum/gallery/image/823063-budowa-obory/#findComment-3016498
dawid6330 124 Opublikowano 9 Stycznia 2023 Nie model XA Odnośnik do komentarza https://www.agrofoto.pl/forum/gallery/image/823063-budowa-obory/#findComment-3016504
Roman4321 1419 Opublikowano 9 Stycznia 2023 jak masz bednarki rozwiązane/uziemienia? Odnośnik do komentarza https://www.agrofoto.pl/forum/gallery/image/823063-budowa-obory/#findComment-3016580
ogorek_kiszony 13 Opublikowano 10 Stycznia 2023 (edytowane) Hala 2x7? Pierwsze co się rzuca w oczy, to w niektórych powiatach Weterynaria robi problem jesli jest przejście bezpośrednio od zbiornika do hali udojowej. Tam gdzie masz biuro to może jakieś okno z plexi na oborę ochronione kratą stalową. Bramki na wyjsciu z hali masz przemyślane? Tak żeby grupy się nie mieszały i wychodziły odrazu na stół? Edytowane 10 Stycznia 2023 przez ogorek_kiszony Odnośnik do komentarza https://www.agrofoto.pl/forum/gallery/image/823063-budowa-obory/#findComment-3016662
ChiquitaB 1010 Opublikowano 10 Stycznia 2023 Mi się wydaje że z przodu to jakaś izolatka a z boku jest zbiornik oddzielony powrotem ale kolega musi to powiedzieć. Bramki faktycznie trzeba mega przemyśleć. Ja z biura mam okno witrynowe wstawione niby mocniejszą szybę ma i oprócz tego że obzyzane przez krowy to nie robią nic więcej. Szybciej drzwi molestują których teraz bym nie wstawił bo i tak nie używam. Na wyjściu korytarza polecam bramkę która za d*pa krowy się zamyka sama i łbem sobie otworza Odnośnik do komentarza https://www.agrofoto.pl/forum/gallery/image/823063-budowa-obory/#findComment-3016678
dawid6330 124 Opublikowano 10 Stycznia 2023 (edytowane) Separatka po lewo okno z biura na separatke a zbiornik na mleko z przodu przed hala udojowa, hala 2x8 60 stopni. Bramek jest sporo jak dostałem koncepcję od gea to nie mogłem sam się połapać jak te krowy bedo manewrować podczas doju. Musiałem trochę zmienić układ socjalu względem propozycji gea bo kat dachu mnie ograniczał a nie chciałem mocnego wcięcia w oborę. Edytowane 10 Stycznia 2023 przez dawid6330 Odnośnik do komentarza https://www.agrofoto.pl/forum/gallery/image/823063-budowa-obory/#findComment-3016719
ChiquitaB 1010 Opublikowano 10 Stycznia 2023 A który diler gea ci doradza? Odnośnik do komentarza https://www.agrofoto.pl/forum/gallery/image/823063-budowa-obory/#findComment-3016725
dawid6330 124 Opublikowano 10 Stycznia 2023 To było tak machlem na kartce swój pomysł oni trochę to podrasowali chciałem dwie grupy nie będę mówił kto co i jak bo tak wyszło że hala będzie firmy SAC 🙈 Odnośnik do komentarza https://www.agrofoto.pl/forum/gallery/image/823063-budowa-obory/#findComment-3016730
ChiquitaB 1010 Opublikowano 10 Stycznia 2023 Spoko, jakiś pomiar mleka czy coś w tym stylu? Ja mam delaval zwykła ale kiedyś sobie pomiar dołożę jak się dorobie🤣 Odnośnik do komentarza https://www.agrofoto.pl/forum/gallery/image/823063-budowa-obory/#findComment-3016733
dawid6330 124 Opublikowano 10 Stycznia 2023 Tak z pomiarem przygotowana pod kompa aby dołożyć zarządzanie. Odnośnik do komentarza https://www.agrofoto.pl/forum/gallery/image/823063-budowa-obory/#findComment-3016739
krzychu121 6340 Opublikowano 10 Stycznia 2023 31 minut temu, dawid6330 napisał: To było tak machlem na kartce swój pomysł oni trochę to podrasowali chciałem dwie grupy nie będę mówił kto co i jak bo tak wyszło że hala będzie firmy SAC 🙈 Czemu padło na firmę sac? Odnośnik do komentarza https://www.agrofoto.pl/forum/gallery/image/823063-budowa-obory/#findComment-3016741
Rekomendowane komentarze
Jeśli chcesz dodać odpowiedź, zaloguj się lub zarejestruj nowe konto
Jedynie zarejestrowani użytkownicy mogą komentować zawartość tej strony.
Zarejestruj nowe konto
Załóż nowe konto. To bardzo proste!
Zarejestruj sięZaloguj się
Posiadasz już konto? Zaloguj się poniżej.
Zaloguj się